top of page
Swant House
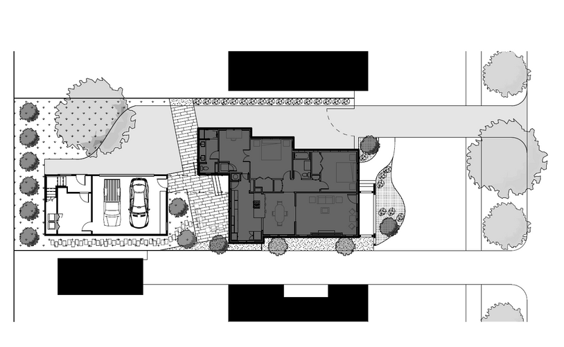
Situated in the historic Miller Neighborhood in Oklahoma City the project encompassed a 1,500 square foot interior remodel and a ground up accessory dwelling unit. Taking care to protect an old growth tree the accessory dwelling unit hides itself behind the existing Tudor house.
Swant House: Pro Gallery
bottom of page





